HKCWC-6 系列無線接點測溫裝置使用說明
HKCWC-6 系列
無線接點測溫裝置
(適用于3~12個點無線測溫)
一、產品概述
電力系統高壓設備在長期運行過程中常出現表面氧化腐蝕、緊固螺栓松動,觸點和母線連接處老化等問題,造成設備過熱甚至出現嚴重事故。而開關柜內有裸露高壓,空間封閉狹小,無法進行人工巡查測溫,傳統的測溫方式都無法有效地解決這個問題。無線接點測溫裝置將測溫度傳感器安裝到開關柜內的帶電接點觸電上,并以無線傳輸方式將溫度數據上傳至接收端,由接受終端通過液晶顯示,并通過RS485總線將溫度數據上傳至客戶端后臺軟件。
當檢測到接點溫度異常時,系統可自動遠程報警,以便及時消除事故隱患。
二、技術指標
工作溫度:-20℃~+65℃
工作濕度:≤95%RH
海拔高度:<3KM
介質強度:≥AC2000V
絕緣性能:≥100MΩ
抗電磁干擾性能:符合IEC255-22的標準規定
工作電源:AC85~265V/DC110~300V
溫度測量精度: ±1℃
無線觸點測溫范圍:-55℃~+125℃
溫度測量周期時間:5S
通訊方式:RS485通訊接口,MODBUS的RTU通信協議
發射模塊與接受模塊間空曠距離: <100米
測溫點數:1到12點
測溫壽命:測溫發射端內3.6V鋰電池,正常工作時間大于5年
三、主要功能
多路開關接點在線溫度實時數據顯示;
報警溫度▲▼限設定數據顯示;
事件記錄功能:記錄近十次超溫報警數據,所有數據均帶有時標記錄;
當前日期、時間設定功能;
通訊地址和波特率設定功能;
系統可自動遠程超溫報警;
設備自檢功能和自動回復功能,當本設備在運行過程中由于外在的干擾和惡劣環境時,能自動啟動備份程序而自動恢復正常功能;
通過RS485總線將溫度數據上傳至客戶端后臺軟件顯示。
實物圖
四、HKCWC無線接點測溫裝置安裝
1)無線測溫接受端安裝說明
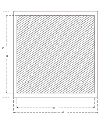
1安裝尺寸圖
(開孔尺寸91*91MM)
2接收端端子接線圖
2)無線測溫發射端安裝說明
1、觸點測溫單元結構
HKCWC無線測溫在線檢測裝置由無線測溫接收端、測溫發射模塊、測溫采集接收模塊(已組裝接受端內)及外置天線。
2、無線溫度傳感器尺寸及參數
安裝尺寸圖:(單位:mm)

尺寸:W 43× L 350 ×H 20
特點及參數
a.耐溫(-180℃~+250℃)阻燃材料制作塑膠表帶殼體,防水。
b.體內的熱敏傳感器與接點體緊密接觸,能準確測量實時溫度。
c.內模塊發射距離為20~30米。
d.測溫范圍-55℃~125℃。
3)安裝
測溫發射模塊,分別安裝在開關柜進線室和出線室的母排上,安裝方式為捆綁式安裝。
a.把表帶狀的測溫模塊放在被測物體上。
b.把表帶狀的測溫模塊的一端穿過另一端。
c.直到表帶狀的測溫模塊緊緊地套在被測物體上。
d.把延長部分的表帶剪掉。
e.安裝時柜體要停電。

